BIMQuote
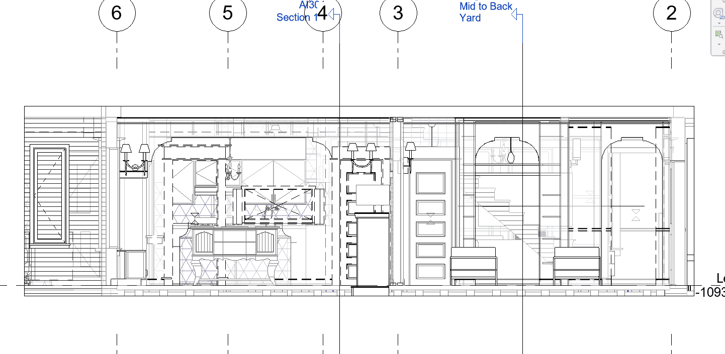
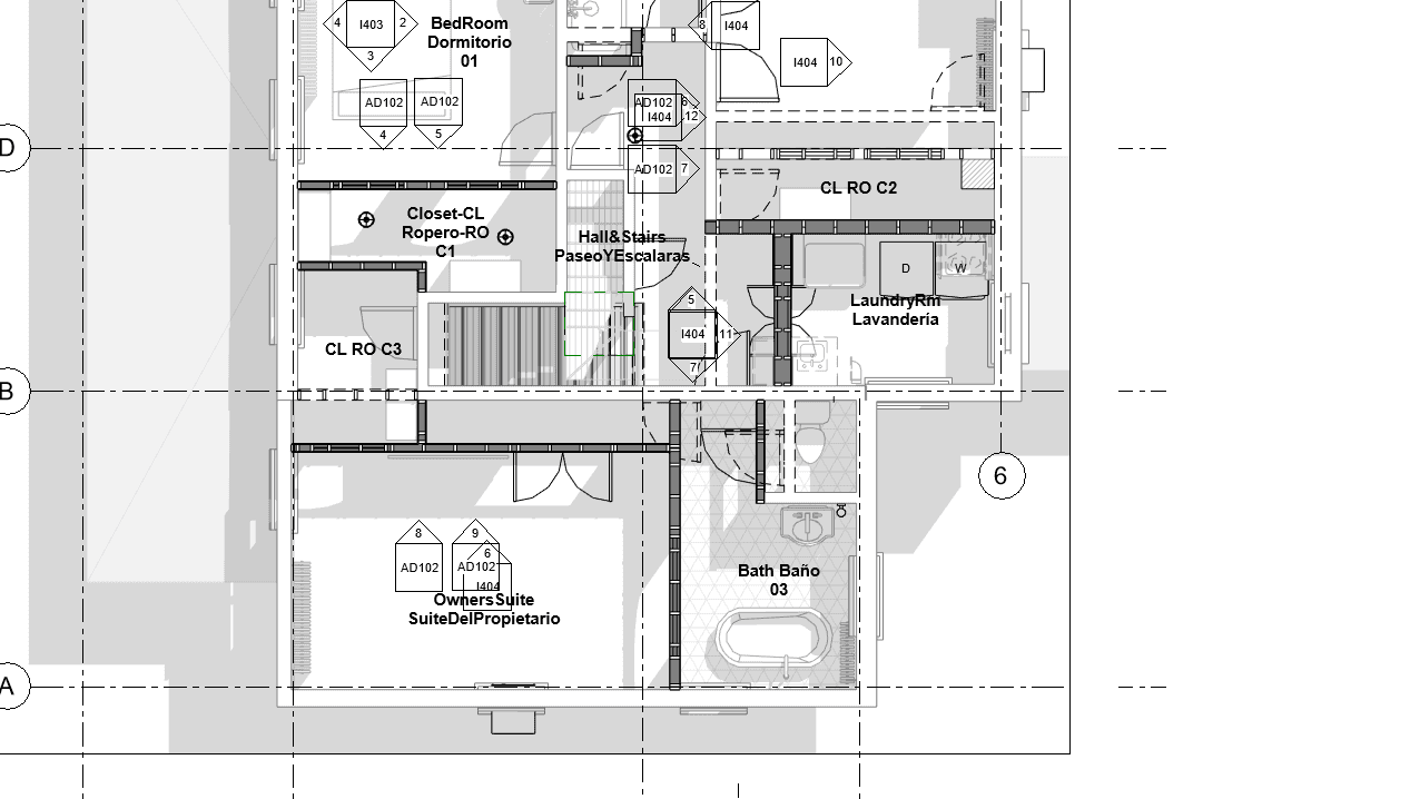
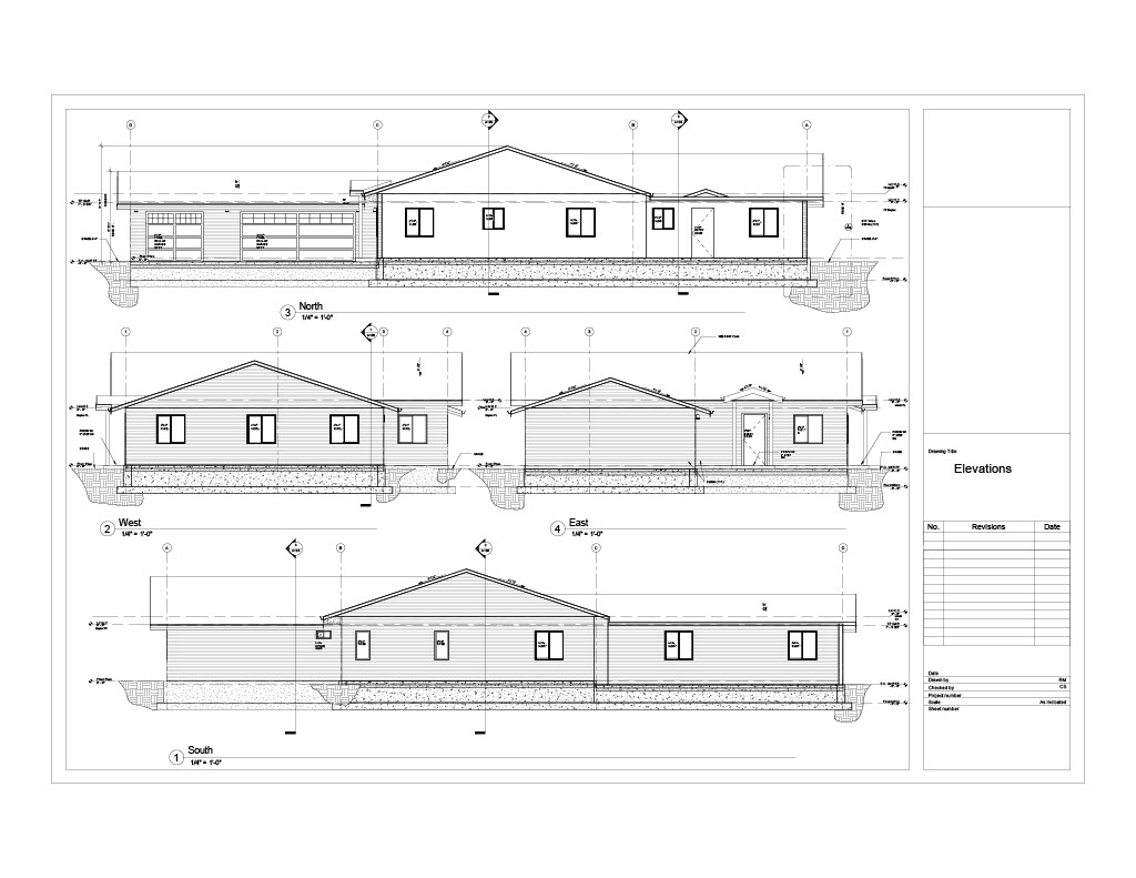
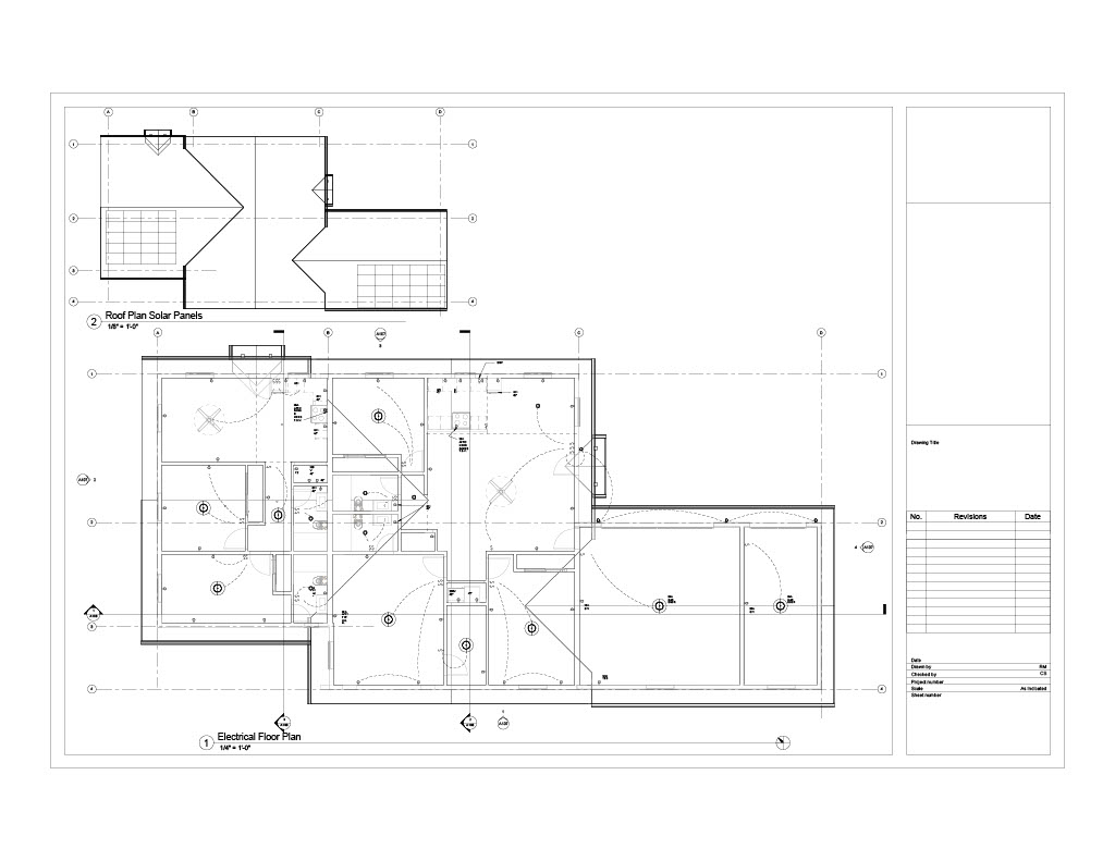
These projects was completed as part of my work with BIMQuote, where I contributed to the development of CustomHome.ai—a platform focused on customizable residential design. Our team was responsible for designing and modeling over 800 unique residential plans entirely in Revit. Beyond 3D modeling, we compiled detailed product data for every element used in the homes, enabling clients to explore and select from U.S. market-available materials and fixtures. Each model was linked to cost specifications, providing users with real-time pricing transparency. In addition to design and documentation, I also worked on the website’s backend integration to ensure seamless functionality between the BIM models and the platform interface.






Frontend and Backend of website
Detailed 3D debugging
Live product/furnishing update
Plan sets
Renders











